
Projektauswahl in Planung und Umsetzung
Nachfolgend präsentieren wir eine Auswahl aktueller Bauprojekte unseres Unternehmens. Die vorgestellten Vorhaben geben einen Einblick in unsere Arbeit als Generalplaner und stehen exemplarisch für unseren Anspruch, anspruchsvolle Bauprojekte mit hoher fachlicher Kompetenz, strukturierten Planungsprozessen und einem ganzheitlichen Blick auf Qualität, Wirtschaftlichkeit und Nachhaltigkeit umzusetzen.
Fassadensanierung eines Verwaltungsgebäudes
ca. 3.200 qm Fassadensanierung inkl. Fensteraustausch und Modernisierung des Eingangsbereiches
Dachsanierung eines Verwaltungsgebäudes
3.500 qm Flachdachsanierung inkl. Photovoltaikanlage
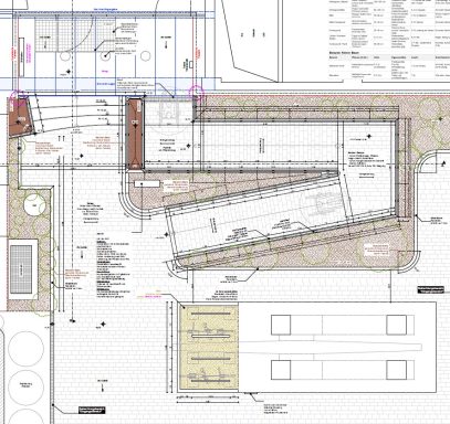
Gestaltung der Außenanlage eines Büro- und Technikgebäudes
Barrierefreie Neugestaltung der Außenanlage eines Eingangsbereichs
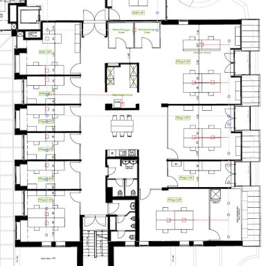
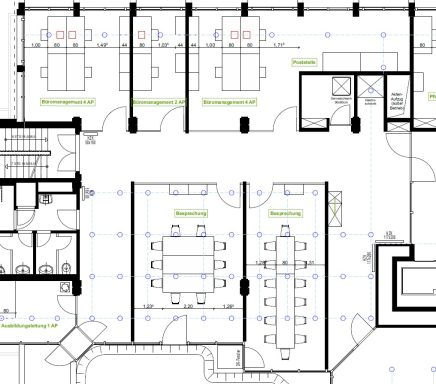
Konsolidierung und Modernisierung eines Verwaltungsgebäudes
Modernisierung von ca. 3.500 qm BGF Bürofläche auf vier Geschossen
Bauleitung für öffentlichen Wohnungsbau
Bauleitung für ca. 130 Wohneinheiten im öffentlichen Wohnungsbau














